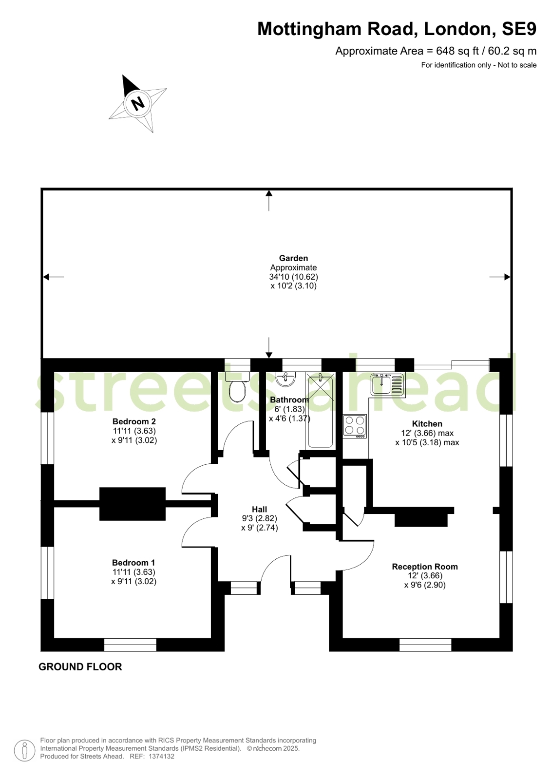
Mottingham Road, London, SE9

UNDER OFFER

£350,000 – Freehold

Bedrooms 2

CASH BUYERS ONLY
Set within this period development is this unique two bedroom detached bungalow. In need of complete modernisation but offering huge potential.Offered onto the market with no onward chain.

Or call us on 020 8653 9222
plan of building architectural project background 2021 08 26 16 32 26 utc
website property page floorplan icon green

Click to view floorplan

energy performance certificate EPC assessments during the coronavirus crisis1 2
website property page epc icon green

Click to view EPC

Property overview

Everything you need to know about the property

LOCATION
Nestled within an elegant period development dating back to the 1900’s, this rare two-bedroom detached bungalow presents outstanding potential to create a truly bespoke home.
The property offers a well-proportioned 12ft lounge, spacious kitchen/diner, two generous double bedrooms, and a secluded private garden to the rear.

Offered to the market with no onward chain.

DIRECTIONS
Geffrey’s Court is located just off Mottingham Road, a short distance to Chislehurst High Street and only 0.7 miles from Mottingham Station which provides direct access to London Bridge, Waterloo East, Charing Cross & Cannon Street. Changes are possible at Lewisham for the DLR & New Cross for the East London Line.

TRANSPORT
Mottingham: 0.5 miles
New Eltham: 1.1 miles
Elmstead Woods: 1.1 miles

STREETS AHEAD - CRYSTAL PALACE

Get in touch to schedule a viewing

Your perfect home is just a phone call away

Whether you’re looking to buy or rent, our team of dedicated estate agents are here to help make it happen. We’re passionate about helping you find your perfect home, and we’re always available to answer any questions you may have about this property or the home-searching process in general. So whether you’re a first-time renter, a seasoned buyer, or just looking to move into your next dream home, we’re here to help.

To arrange a viewing, simply click the button below to view our branch contact details. From there, you can get in touch with us via phone, email, or in-person visit. We’ll work with you to schedule a viewing that fits your schedule, so you can experience the property for yourself and see if it’s the right fit for you.

Don’t let this opportunity slip away – get in touch with us today and let’s make your property dreams a reality.

Find a property

Other properties that may interest you.

Offers in Excess of £325,000 – Share of Freehold

Cranleigh Gardens, South Norwood

£320,000 – Share of Freehold

Cotelands, East Croydon, Parkhill

Offers in Excess of £300,000 – Leasehold

Marston Way, London