Beech Avenue, South Croydon, CR2

VIEWING NOW

Offers in Excess of £425,000 – Leasehold

Bedrooms 2

Superbly built new build homes by Vineyard Developments comprising of three generous detached family homes and 6 spacious apartments all boasting outside space and off street parking, Offering a high specification throughout in this sought after location close to Purley Oaks Station.

Or call us on 020 8655 4780
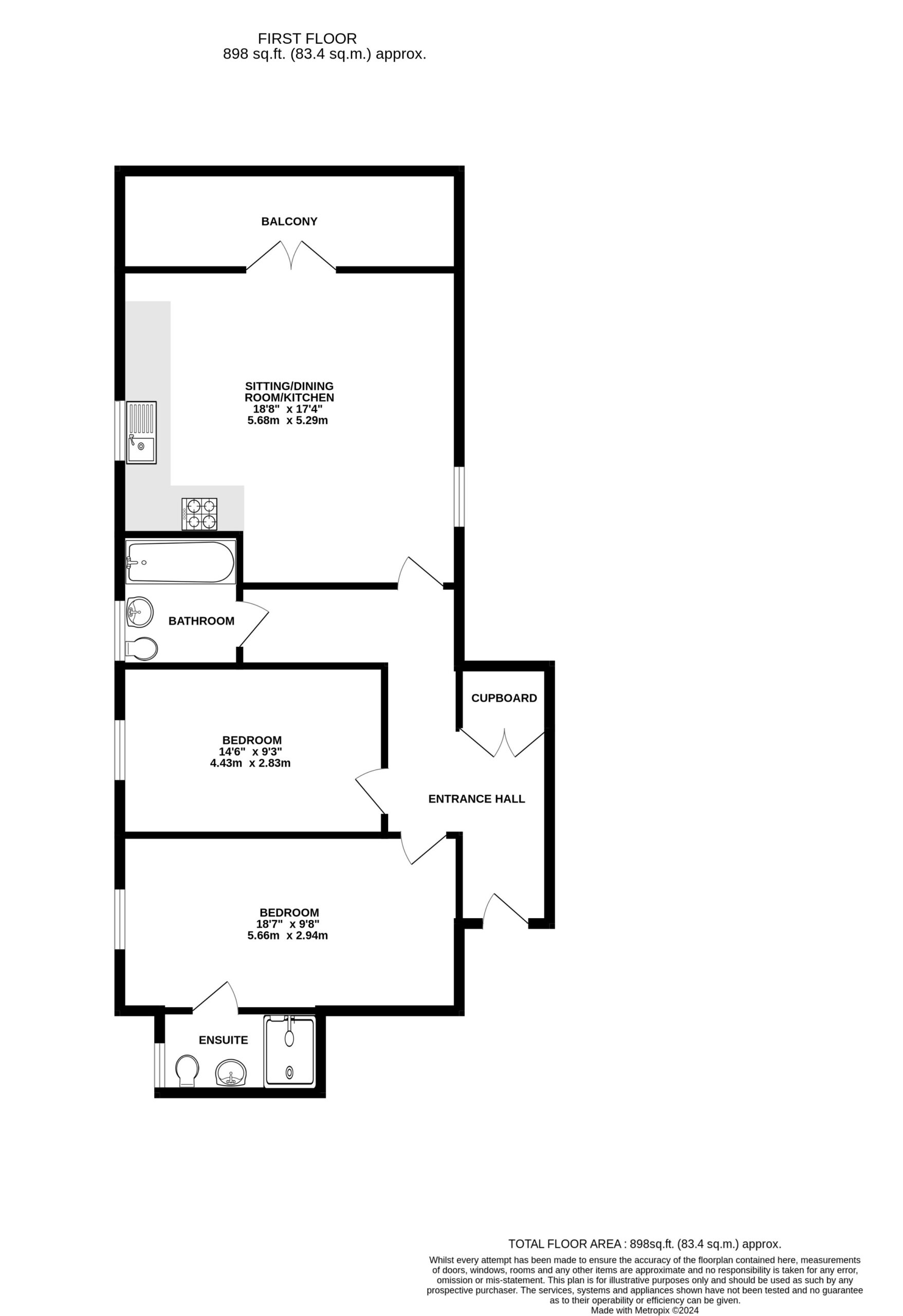
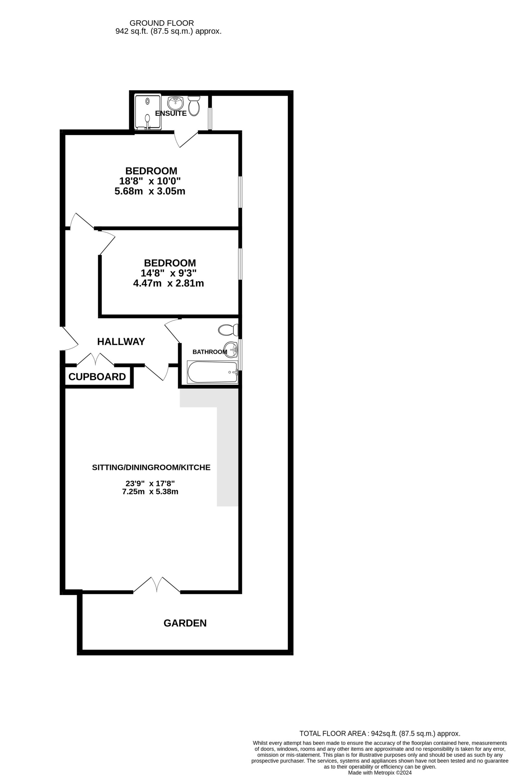
plan of building architectural project background 2021 08 26 16 32 26 utc
website property page floorplan icon green

Click to view floorplan

Property overview

Everything you need to know about the property

LOCATION
LAST REMAINING APARTMENT!

Discover Vineyard Developments’ latest offering, a collection of superbly built new homes in a sought-after location next to Wettern Tree Gardens,, Purley Downs Golf Club and Purley Oaks Station. This exceptional project comprises three expansive detached family homes and six spacious apartments, meticulously designed to meet the highest standards of modern comfort and style.

The houses, each featuring four bedrooms, three bathrooms, and a reception room, offer ample space for families to thrive. Meanwhile, the apartments, boasting two bedrooms, two bathrooms, and a reception room, provide a stylish and convenient living solution for individuals or smaller households.

Every property within this development showcases a high specification throughout, from premium finishes to thoughtful design details, ensuring a luxurious living experience for all residents.

Situated in a convenient location next to the beautiful Wettern Tree Gardens and close to Purley Downs Golf Club. Purley Oaks Station is nearby and commuting is effortless, with excellent transport links connecting you to the heart of London and beyond. Plus, with the added convenience of outside space and off-street parking, every aspect of modern living has been carefully considered, making this development the perfect place to call home.

Register your interest today to experience the charm and comfort these homes have to offer.

STREETS AHEAD - NEW HOMES

Get in touch to schedule a viewing

Your perfect home is just a phone call away

Whether you’re looking to buy or rent, our team of dedicated estate agents are here to help make it happen. We’re passionate about helping you find your perfect home, and we’re always available to answer any questions you may have about this property or the home-searching process in general. So whether you’re a first-time renter, a seasoned buyer, or just looking to move into your next dream home, we’re here to help.

To arrange a viewing, simply click the button below to view our branch contact details. From there, you can get in touch with us via phone, email, or in-person visit. We’ll work with you to schedule a viewing that fits your schedule, so you can experience the property for yourself and see if it’s the right fit for you.

Don’t let this opportunity slip away – get in touch with us today and let’s make your property dreams a reality.

Find a property

Other properties that may interest you.

Offers in Excess of £400,000 – Share of Freehold

Eldon Park, South Norwood

£425,000 – Freehold

Thornton Road, Croydon

£425,000 – Freehold

Longhurst Road, Croydon